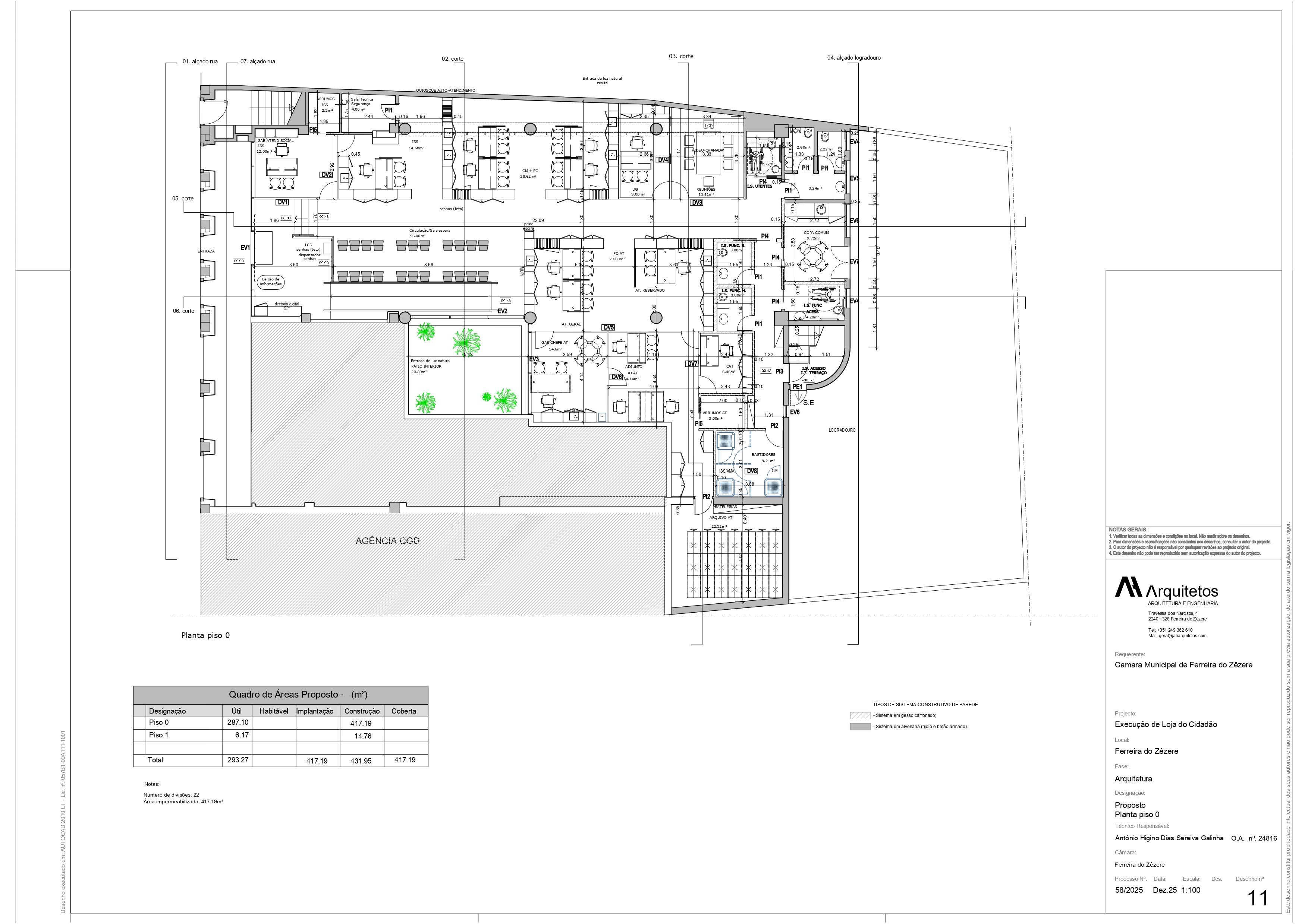
Já é conhecida a planta da futura Loja do Cidadão de Ferreira do Zêzere, que será instalada na Praça Dias Ferreira, no centro da vila, junto à agência da Caixa Geral de Depósitos, num edifício que será requalificado para acolher vários serviços públicos.
O projeto, promovido pela Câmara Municipal de Ferreira do Zêzere, representa um investimento de cerca de 700 mil euros, dos quais aproximadamente 550 mil euros são financiados por fundos europeus.
A nova Loja do Cidadão irá concentrar serviços como a Autoridade Tributária e Aduaneira, o Instituto da Segurança Social, o Balcão Único do Município e o Espaço Cidadão, permitindo aos munícipes tratar de vários assuntos num único local.
O espaço contará com zona de atendimento ao público, área de espera, gabinetes técnicos e um pátio interior ajardinado, integrando o conceito Loja do Cidadão 5.0, que aposta num atendimento mais simples, rápido e próximo dos cidadãos.
